軟包裝不斷迅速發展,在這個領域中的凹版印刷機也必須不斷創新改進,才能達到軟包裝快速發展的要求。因而,設備制造商必須生產出高印刷速度、高套印精度、承印材料范圍廣、運轉平穩、低噪音、操作方便等優點的凹版印刷機才能與之齊頭并進。
一、軟包裝常用凹版印刷機的種類
軟包裝常用凹版印刷機的種類以印版在印刷組的安裝形式來區分,可分為兩種:
一是有軸裝版凹版印刷機,印版兩端有軸承;
二是無軸裝版凹版印刷機,印版兩端為圓錐孔,安裝形式是兩端的左右印版軸對印版頂緊。
以印版在印刷組的驅動形式來區分,也可分為兩種:
一是傳動軸凹版印刷機,印刷機所有印刷組的動力來自一個主電機,該主電機放置在所有印刷組的中間,再通過印刷組之間的傳動軸把動力向前面及后面的印刷組齒輪箱傳遞,最后由齒輪箱里的齒輪驅動印版旋轉。
二是電子軸(也稱無傳動軸)凹版印刷機,每個印刷組的印版均由一個伺服電機來驅動(圖一、圖二、圖三)。特別說明,本文所提到的電子軸印刷機,其印版安裝形式均為無軸裝版,有軸裝版電子軸歐洲比較多,亞洲很少,就不贅述。
二、無軸裝版的分類及優勢
實踐證明無軸裝版要比有軸裝版方便一些,顯得比較人性化;而傳動軸和電子軸凹版印刷機從傳動結構來看,可以看出電子軸少了傳動軸固有的齒輪傳動,因而相對而言電子軸運轉過程要比傳動軸更平穩,噪音更小;另外,電子軸印刷機可以印刷那些沒有延伸性能的承印材料和進行第二次印刷,這類訂單對傳動軸印刷機來說,難度是很大的。
目前國內電子軸凹版印刷機基本上有三種:

圖一所示是一個伺服電機經過一級同步帶減速傳動再驅動印版旋轉,可以定義為同步帶電子軸。

圖二所示是一個伺服電機經過高精度減速器傳動再驅動印版旋轉,可以定義為次直驅式電子軸。

圖三所示是一個伺服電機直接驅動印版旋轉,可以定義為直驅式電子軸。
本文主要闡述圖三所示的這種由伺服電機直接驅動印版旋轉的無軸裝版結構。
電子軸凹版印刷機的印刷組必須具備印刷和套準兩個功能,這兩個功能要讓驅動印版旋轉的伺服電機來完成。
印刷過程中,當發現前后印刷組印刷點的相對位置沒套準時,后一個印刷組的伺服電機就必須對印刷位置進行修正,根據印刷位置的提前或滯后,伺服電機就會調整自己的相位減少或增加(通過調整印版的角度減少或增加)來消除這種提前或滯后,調整的動作表現為伺服電機相對于原來的轉速作反轉或正轉,進而驅動印版相對于原來的轉速作反轉或正轉。
在正常的印刷過程中,套準調校是非常頻繁的,所以伺服電機會頻繁地驅動印版正轉或反轉,故而伺服電機至印版的傳動過程就不允許有太大的回轉間隙,否則將不能達到套準印刷目的。
圖一所示的同步帶電子軸,伺服電機至印版的傳動過程中,回轉間隙存在的環節有鍵連接、同步帶的彈性及同步帶傳動的間隙;圖二所示的次直驅式電子軸,伺服電機至印版的傳動過程中,回轉間隙存在的環節有鍵連接及高精度減速器本身所固有的回轉間隙,圖三所示的直驅式電子軸,伺服電機至印版的傳動過程中,回轉間隙存在的環節有鍵連接。
從上述三種電子軸對比分析可以得出結論:圖三所示的直驅式電子軸,伺服電機至印版的傳動過程中,由于傳動環節最少,所以回轉間隙也最小,故而套準效率和精度會最高。
三、直驅式電子軸的無軸裝版結構
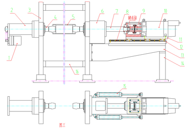
直驅式電子軸的無軸裝版結構(見圖三)主要零件有:
1橫向修正電機;2操作側印版軸承座;3墻板(機架);4操作側印版軸;5印版,6傳動側印版軸承座;7傳動側印版軸;8直線導軌;9聯軸器;10伺服電機;11伺服電機座;12安全擋件;13支架一;14支架二;15氣缸;16橫梁(機架)。
以下就詳細分析這種直驅式電子軸的無軸裝版結構:
首先,由左右墻板(件3)和上下橫梁(件16)、支架一(件13)、支架二(件14)組合成一個整體機架,使無軸裝版結構能夠有一個穩定的運轉壞境;
其次,無軸裝版結構的操作側印版軸承座及傳動側印版軸承座兩部分,有足夠的長度來支撐兩側的印版軸,是印版能夠平穩運轉的保障。
印刷機工作時,操作側印版軸及傳動側印版軸同時伸出頂緊印版,此頂緊力來自傳動側裝版汽缸,傳統的無軸裝版結構裝版汽缸活塞桿軸心線與印版回轉中心線理論上一致,頂緊力不會產生附加力矩;而直驅式電子軸無軸裝版結構因印版的回轉軸心與電機轉子回轉軸心相同,所以裝版汽缸活塞桿軸心線無法與印版的回轉軸心相一致,裝版汽缸必須移至另一位置并且頂緊力方向與印版的回轉軸心平行,此時如果再采用單汽缸施壓,則汽缸頂緊力與操作側印版軸頂緊力方向相反并且有一距離,必然會在傳動側印版軸上形成一附加力矩,導致兩側印版軸受力情況不一致,從而增加兩側印版軸的不同軸度。
在一般情況下,此種高速印刷機都帶有橫向自動套準功能,印刷機工作時一般情況下也會啟動橫向自動套準功能,如果這些因素綜合在一起,可能會加快兩側印版軸的磨損。
為避免這種情況,可以在印版的回轉軸心兩側對稱處各安裝一個汽缸,安裝位置應使兩側汽缸頂緊力與印版的回轉軸心在同一平面上,兩側汽缸頂緊力的合力位置及方向就能與印版的回轉軸心一致。
在實際應用過程中,當兩側汽缸開始啟動時,經常會出現不同步的情況,考慮到這個因素,在設計直驅式電子軸的無軸裝版結構時,應選用足夠長的直線導軌,進而消除兩側汽缸開始啟動時不同步對印版軸的損傷,而當兩側汽缸處在正常工作狀態(即頂緊印版狀態)時,兩側汽缸頂緊力已處于平衡狀態,此時不會對印版軸產生不良的附加力作用。
四、結語
基于上述的對比及分析,直驅式電子軸的無軸裝版結構的綜合性能要比其它裝版結構高,更能使凹版印刷機達到高印刷速度、高套印精度、承印材料范圍廣、運轉平穩、低噪音、操作方便等目的,滿足軟包裝高速發展的需要。